VS1 真空斷路器:
主要用途
VS1-12 型戶內高壓真空斷路器,系三相交流 50Hz 定額電壓為 12kV 電力系統的戶內開關設備,作為電網設備、工礦企業動力設備的保護和控制單元。適用于在額定工作電流下的頻繁操作,或多次開斷短路電流的場所。
該斷路器采用操動機構與斷路器本體一體式設計,既可做為固定安裝單元,也可配有專用推進機構,組成手車單元作用。
使用環境條件
A 周圍空氣溫度:上限+40℃,下限-15℃;
b 海拔高度:≤100m(若需增高海拔,則額定絕緣水平相應提高);
c 振幅:地震列度不超過8度;
d 空氣相對濕度日平均值不大于95%,月平均值不大于90%
e 無火災、爆炸危險、嚴重污染、化學腐蝕及劇烈震動的場所。
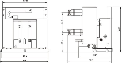
外形及安裝尺寸圖

上一個:TBP-避雷器







